
Emilie M. Steinberg
Duke University
Pratt School of Engineering
Create Your First Project
Start adding your projects to your portfolio. Click on "Manage Projects" to get started
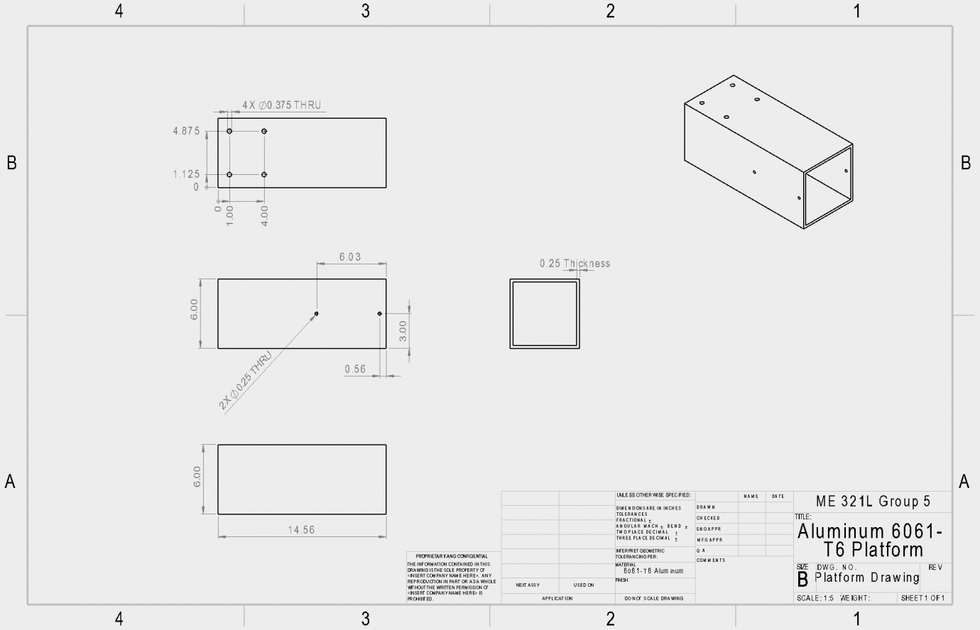
Pump Platform
Project type
Final Design Project for Mechanical Analysis Course
Date
May 2025
Location
Duke University
I worked with a team to design and build a pump support platform capable of carrying a centrifugal pump under high belt and pulley loads. We created a lightweight, corrosion-resistant aluminum structure that maintained alignment, limited deflection to 3 mm, and met safety factors against yielding and buckling. The platform integrated with the existing frame and was manufactured within budget using 6061 aluminum.
My role included performing stress and deflection calculations, selecting materials, and validating the design through SolidWorks FEA. I also contributed to CAD modeling, detailed drawings, and machining of the final parts in the Duke University Machine Shop.







